1037 Bronze Vertical Check Valve (Screwed) | Bluebell - Authorized Valve Dealer & Supplier

Check Valves

Bronze Vertical Check Valve (Screwed)

Article Code: 1037

Suitable For

Steam
Water
Oil
Air
Gases

Salient Features

  • Screwed Female Ends to IS 554 / BS 21 / ISO 7.
  • Single Piece Design.
  • Permits flow in one direction and shuts automatically if the flow reverses.
  • Design Standard IS 778, Class-1.
  • Meant for Vertical Lines Only.
  • Also available with metal to metal seating.
  • Pressure Rating PN:
  • Test Pressure (Hydrostatic) :
  • Shell : 1.5 MPa
  • Seat : 0.25 MPa
  • Maximum Working Temperature : 45oC
Available Sizes

Description

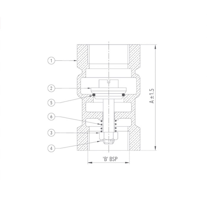
P.No. Name of Part Material of Construction Specification Quantity
1 Body Bronze IS 318 Gr. LTB 2 1
2 Disc Bronze IS 318 Gr. LTB 2 1
3 Nut Brass IS 319 Gr. 2 (Half Hard) 1
4 Split Pin Brass – – – 1
5 ‘O’ Ring Nitrile Rubber IS 5192 – 1 1
6 Spring Stainless Steel Type 304 1

Product GAD

Bronze Vertical Check Valve (Screwed) Design

Sizes / Dimensions

Size (Inches) Size (mm) A ±1.5 B
1/2 15 65 1/2"
3/4 20 70 3/4"
1 25 75 1"
1 1/4 32 85 1 1/4"
1 1/2 40 95 1 1/2"
2 50 110 2"

Please Fill in the Details for Prompt Response