1035 Bronze Gate Valve (Screwed) | Bluebell - Authorized Valve Dealer & Supplier

Gate Valves

Bronze Gate Valve (Screwed)

Article Code: 1035

Suitable For

Steam
Water
Oil
Air
Gases

Salient Features

  • Screwed Female Ends to IS 554 / BS 21 / ISO 7.
  • Screwed in Bonnet, Inside Screw, Non-Rising Stem, Integral Seat.
  • Designed sheet metal handwheel for a firm grip and convenient operation.
  • Premium Quality PTFE Gland Packing.
  • Design Standard IS 778, Class-1.
  • Provision for re-packing under pressure.
  • Pressure Rating PN:
  • Test Pressure (Hydrostatic) :
  • Shell : 1.5 MPa
  • Seat & Back Seat : 1.0 MPa
  • Maximum Working Temperature : 45oC

Description

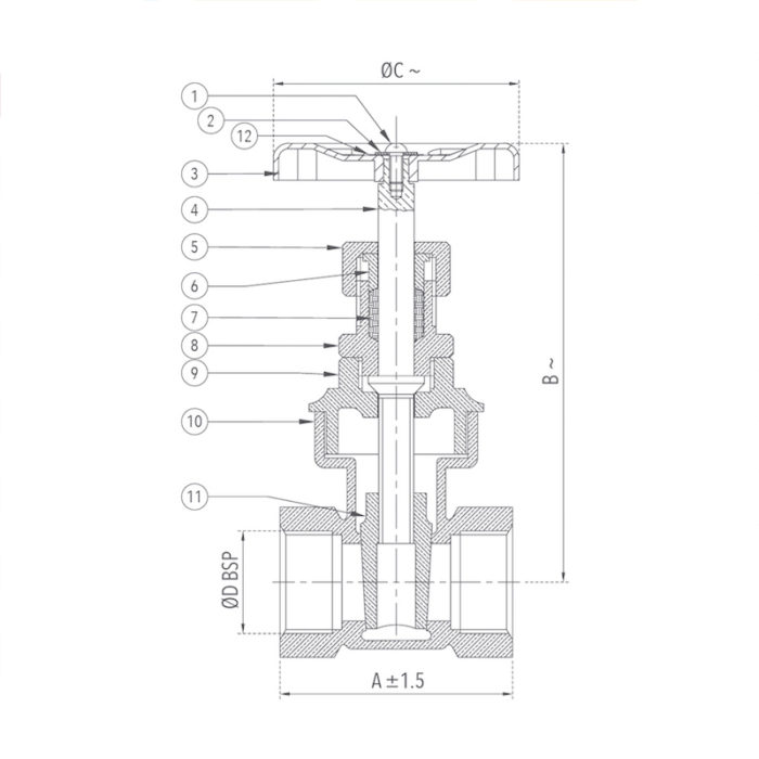
P.No. Name of Part Material of Construction Specification Quantity
1 Screw / Bolt Carbon Steel (Zinc Plated) — — — 1
2 Washer Carbon Steel (Zinc Plated) — — — 1
3 Handwheel Sheet Metal (Power Coated) — — — 1
4 Stem Forged Brass IS 6912 Gr. FLB 1
5 Gland Nut Forged Brass IS 6912 Gr. FLB 1
6 Gland Forged Brass IS 6912 Gr. FLB 1
7 Gland Packing PTFE — — —
8 Stuffing Box Forged Brass IS 6912 Gr. FLB 1
9 Bonnet Forged Brass IS 6912 Gr. FLB 1
10 Body Bronze IS 318 Gr. LTB 2 1
11 Wedge Bronze IS 318 Gr. LTB 2 1
12 Name Plate Aluminium — — — 1

Product GAD

Bronze Gate Valve (Screwed) Design

Sizes / Dimensions

Size (Inches) Size (mm) A ±1.5 B ~ ØC ~ D
1/4 8 50 84 50 1/4"
3/8 10 50 89 50 3/8"
1/2 15 60 105 60 1/2"
3/4 20 60 117 65 3/4"
1 25 70 132 70 1"
1 1/4 32 80 150 80 1 1/4"
1 1/2 40 90 165 90 1 1/2"
2 50 100 190 110 2"
2 1/2 65 105 232 115 2 1/2"
3 80 125 268 140 3"
4 100 160 332 160 4"

Please Fill in the Details for Prompt Response