1094A Bronze Spring Loaded Safety Relief Valve, Enclosed Discharge (Screwed) | Bluebell - Authorized Valve Dealer & Supplier

Safety Relief Valves

Bronze Spring Loaded Safety Relief Valve, Enclosed Discharge (Screwed)

Article Code: 1094A

Suitable For

Steam
Water
Oil
Air
Gases

Salient Features

  • Screwed Male End to IS 554 / BS 21 / ISO 7.
  • Enclosed Discharge Type.
  • Metal to Rubber contact seating.
  • Pressure Rating PN:
  • Test Pressure (Hydrostatic) :
  • Shell : 21.10 kg/cm2g (300 psig)
  • Working Pressure (Steam) : 10.55 kg/cm2g (150 psig)
  • Set Pressure Range : 0 - 10 kg/cm2g (Max)
  • Maximum Working Temperature : 80oC
Available Sizes

Description

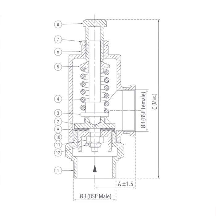
P.No. Name of Part Material of Construction Specification Qty.
1 Body Bronze / Forged Brass IS 318 Gr. LTB 2 / IS 6912 Gr. FLB 1
2 Disc Bronze IS 318 Gr. LTB 2 1
3 Stem Bronze IS 318 Gr. LTB 2 1
4 Spring Spring Steel EN 47 Gr. B 1
5 Spring Disc Bronze IS 318 Gr. LTB 2 1
6 Chamber Bronze IS 318 Gr. LTB 2 1
7 Check Nut Bronze IS 318 Gr. LTB 2 1
8 Adjusting Screw Bronze IS 318 Gr. LTB 2 1
9 Disc Facing Nitrile Rubber IS 5192 – 1 1
10 Guide Bronze IS 318 Gr. LTB 2 1
11 Nut Brass – – – 1
12 Split Pin Brass – – – 1

Product GAD

Bronze Spring Loaded Safety Relief Valve, Enclosed Discharge (Screwed) Design

Sizes / Dimensions

Size (Inches) Size (mm) A ±1.5 B C ~
1/2* 15* 33 1/2" 170
3/4* 20* 38.5 3/4" 170
1* 25* 45 1" 190
1 1/4 32 45 1 1/4" 203
1 1/2 40 47.5 1 1/2" 225
2 50 57 2" 265

Please Fill in the Details for Prompt Response